Karl Frey
Projekte
Karmel Wemding
Wallfahrt Habsberg
Aula am Graben
Sankt Richard
Kirche Bergen
Salesianum Eichstätt
KIGA Hl. Familie
Berlin - Wedding
Sporthalle Canisiuskonvikt
Sankt Bonifatius
Studentenwohnheim
Kinderkrippe KUE
Profil
Kontakt
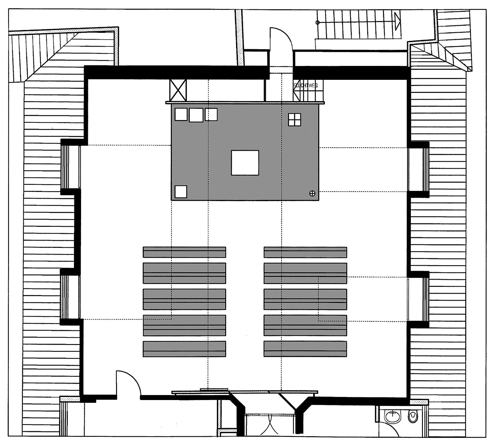
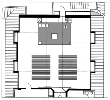
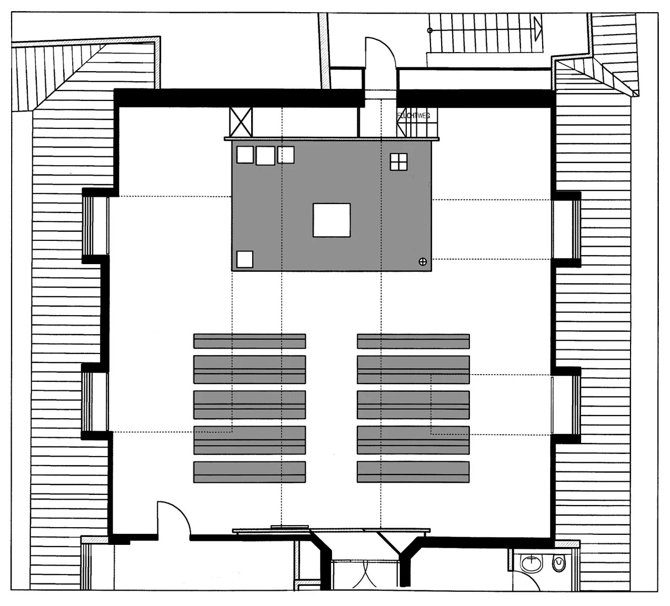
Berlin - Wedding
Berlin
(2002)